Te huur: Kerkraderweg 13a in Heerlen - Heerlen, Molenberg
Details
| Prijs: | €900 /mnd excl. gebruikslasten |
|---|---|
| Soort Woning: | Kantoor-/winkelruimte |
| Plaats: | Heerlen, Molenberg |
| Slaapkamers: | |
| Woon opp: | - |
| Oppervlakte: | 99 m2 |
| Inhoud: | - |
| Bouwjaar: | 1952 |
| Energielabel: | |
| Email naar een vriend | |
Beschrijving van dit object
Deze Winkel- of Kantoorruimte, ongeveer 99 m² gebruiksoppervlakte heeft een goede zichtlocatie bij de oude broederschool en ruim voldoende openbare parkeerruimte.
Indeling:
Begane Grond:
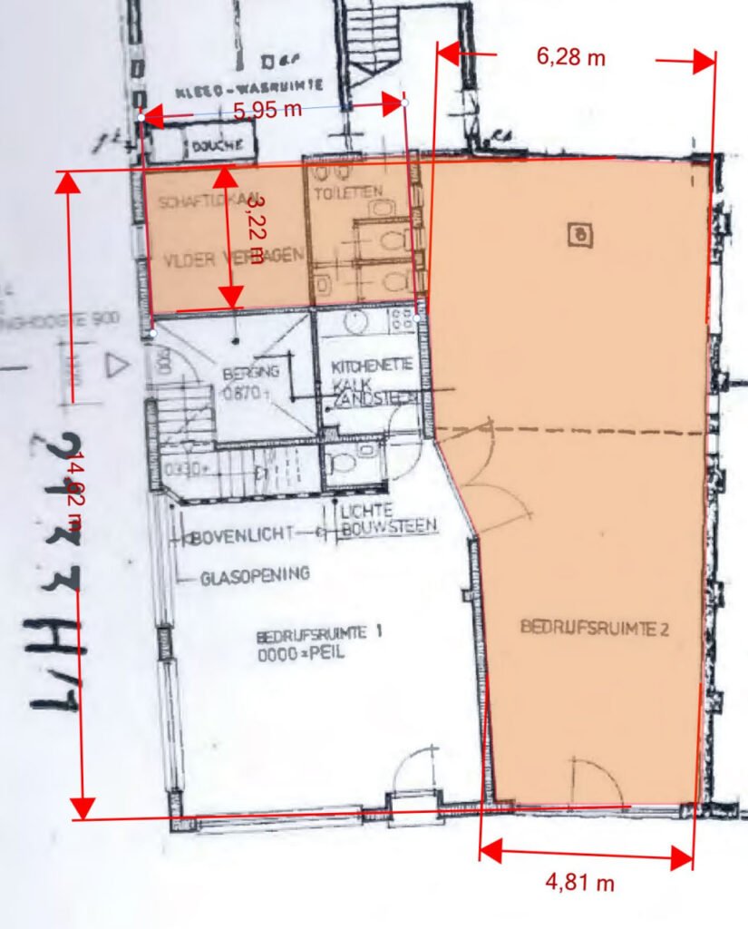
Ca 99 m² gebruiksoppervlakte, met voorzieningen als toilet, magazijn, achteringang.
De ruimte is nagenoeg vrij indeelbaar (in overleg met de verhuurder) en bestaat nu uit diverse ruimtes ten behoeve van het huidig gebruik als dierenartspraktijk.
Zie voor de afmetingen de plattegronden in de fotoreportage/brochure.
Bestemming
Het object valt (onder andere) onder het bestemmingsplan Heerlen-Oost en heeft de bestemming "Detailhandel en Kantoor en Wonen" (wonen is op de betreffende locatie niet toegestaan):
Bezichtiging op afspraak.
Vereisten en voorwaarden:
De huurder van deze kantoorruimte/Winkelruimte is minimaal 24 jaar en kan voldoende inkomen aantonen.
Akkoord van de verhuurder is een voorbehoud.
Indien overeenstemming is bereikt, zal er een standaard ROZ huurovereenkomst ten aanzien van een bedrijfsruimte ex 7:230a worden opgesteld, waarvan een voorbeeld is op te vragen via mijn kantoor.
De huur wordt aangegaan voor minimaal 2 jaar en met een optie op verlenging van 3 jaren en vervolgens om de vijf jaren.
De huurprijs bedraagt € 900,= per maand exclusief gebruikerslasten (gas/water/electriciteit, wa- en inboedelverzekering, gemeentelijke belastingen voor het eigen gebruik) en er zijn geen servicekosten.
De huurprijs wordt jaarlijks geïndexeerd.
Er wordt een borg gevraagd ter hoogte van drie maanden huur.
Interesse? Neem dan contact met mij op of klik op "meer informatie". Dan zal ik spoedig contact met u opnemen.
Indeling:
Begane Grond:
Ca 99 m² gebruiksoppervlakte, met voorzieningen als toilet, magazijn, achteringang.
De ruimte is nagenoeg vrij indeelbaar (in overleg met de verhuurder) en bestaat nu uit diverse ruimtes ten behoeve van het huidig gebruik als dierenartspraktijk.
Zie voor de afmetingen de plattegronden in de fotoreportage/brochure.
Bestemming
Het object valt (onder andere) onder het bestemmingsplan Heerlen-Oost en heeft de bestemming "Detailhandel en Kantoor en Wonen" (wonen is op de betreffende locatie niet toegestaan):
Bezichtiging op afspraak.
Vereisten en voorwaarden:
De huurder van deze kantoorruimte/Winkelruimte is minimaal 24 jaar en kan voldoende inkomen aantonen.
Akkoord van de verhuurder is een voorbehoud.
Indien overeenstemming is bereikt, zal er een standaard ROZ huurovereenkomst ten aanzien van een bedrijfsruimte ex 7:230a worden opgesteld, waarvan een voorbeeld is op te vragen via mijn kantoor.
De huur wordt aangegaan voor minimaal 2 jaar en met een optie op verlenging van 3 jaren en vervolgens om de vijf jaren.
De huurprijs bedraagt € 900,= per maand exclusief gebruikerslasten (gas/water/electriciteit, wa- en inboedelverzekering, gemeentelijke belastingen voor het eigen gebruik) en er zijn geen servicekosten.
De huurprijs wordt jaarlijks geïndexeerd.
Er wordt een borg gevraagd ter hoogte van drie maanden huur.
Interesse? Neem dan contact met mij op of klik op "meer informatie". Dan zal ik spoedig contact met u opnemen.
Interesse in dit object?
Indien u een vraag heeft over dit object, een bezichtiging wenst of een bod wil doen, gebruik dan onderstaand formulier. Wij reageren dan zo spoedig mogelijk op uw bericht.

















